︎
Index
Septimania
Santa Maria
Lluèrnia 2019
Lluèrnia 2020
Escorial
106
Venecia 2019
Joan Maragall
Cebrià Calvet
Information
Tumblr
Instagram
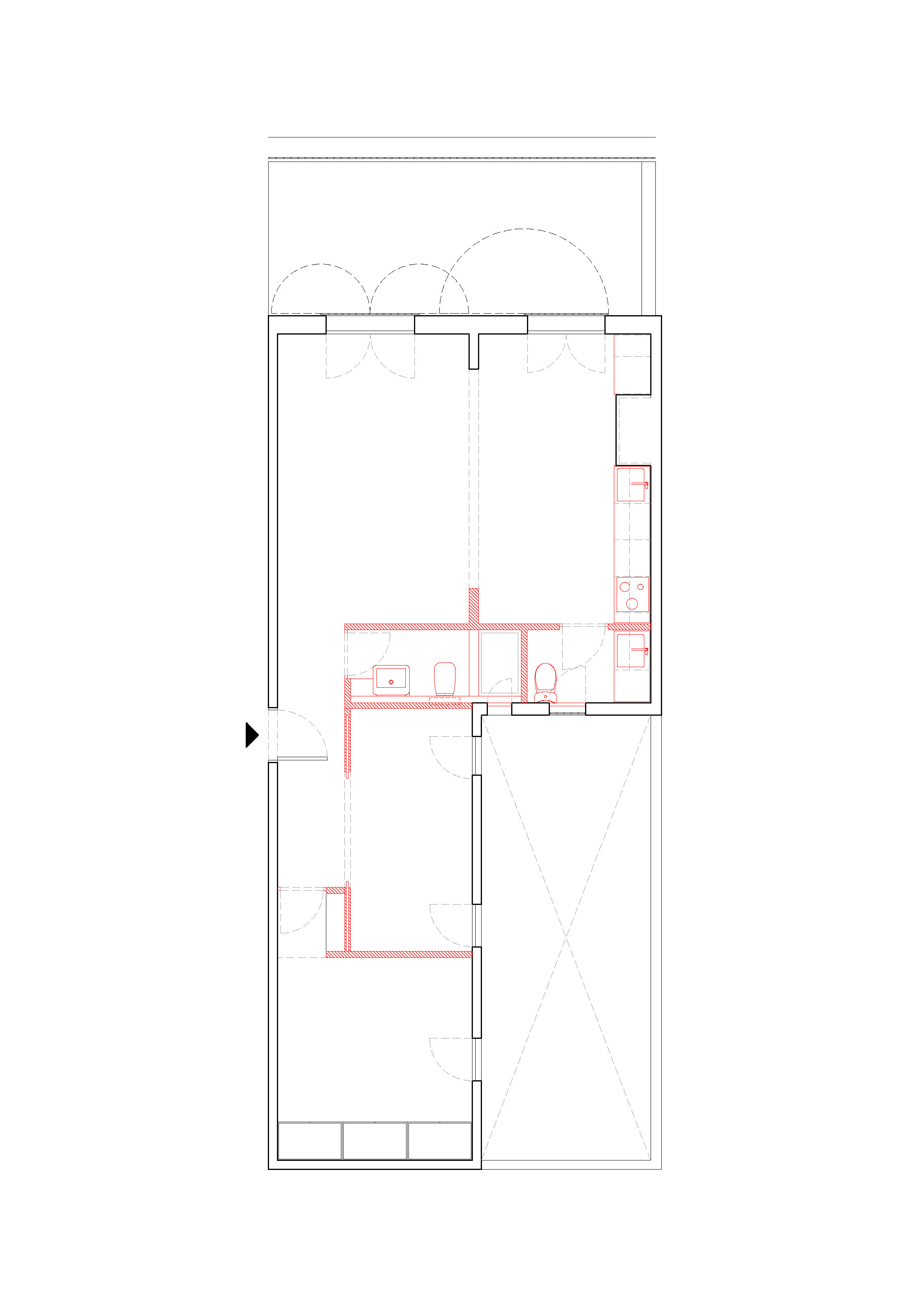
Escorial 106
Client: Private
Work: Apartment Renovation
Location: Barcelona
Date: 2019
Buget: 50.000€
CARGO COLLECTIVE, INC. LOS ANGELES, CALIF. 90039—3414
Running on Cargo